تصاویر| کشف شهری بزرگ از دوره ساسانی در فارس
پارسا قاسمی (دانشجوی دکتری باستانشناسی دانشگاه پاریس۱، فرانسه) با اشاره به کشف شهری بزرگ از دوره ساسانیان در فراشبند فارس، گفت: در نتیجه سنجش از راه دور عکسهای هوایی قدیم و جدید و بررسیهای اولیه میدانی باستانشناسی، یک محوطه بزرگ شهری دوره ساسانی در فراشبند کشف شد. این محوطه حدود ۱۱ کیلومتری شمال شرق و شرق شهر فراشبند، به فاصله ۲۸ کیلومتری شهر باستانی گور یا فیروزآباد، در دشت بنی قطار باچون واقع شده است. در فاصله ۲.۷ کیلومتری شرق این محوطه، روستای نارک و به فاصله ۳ کیلومتری شمال آن روستای باچون قرار دارد.
او با اشاره به آنکه این محوطه حدود ۱۴ کیلومتر مربع مساحت دارد و دارای شش بخش مجزا به شکل مستطیلی، با یک باروی بزرگ در بخش میانی، تعداد زیادی کوشک و ساختمانهای اقامتی در راستای خیابانهای آن است، اظهار کرد: به علت قرارگیری منطقه فراشبند، در قلب امپراطوری ساسانی، تاکنون یافتههای باستانشناسی زیادی از آن بدست آمده است که مهترین آنها یادمانهای معروف به چهارطاقی است. در جنوب غربی محوطه یک محوطه کوچک استقراری روستایی و در شرق آن بقایای یک روستا با بقایای ساختمانی پراکنده زیادی دیده میشود که قدمت آنها از دوره ساسانی تا میانه اسلامی است.

به گفته قاسمی، پیشتر این محوطه روی نقشههای جغرافیایی ۱/۱۰۰ ایران به عنوان قلعه مشخص شده بود اما متاسفانه تاکنون کسی از پژوهشگران متوجه اهمیت آن نشده و در طول چند دهه اخیر آسیبهای زیادی به آن وارد شده است. لازم به ذکر است که پیشتر همکاران باستانشناس استان فارس از این محوطه بازدید کرده و بخش بسیار کوچک مرکزی آن را ثبت کرده بودند و هیچ کدام از آنها به وسعت بزرگ این محوطه پی نبرده و تنها از بخش مرکزی آن بازدید و به توصیف مختصر چند بنای شاخص در آن مانند کاروانسرا و بنای مرکزی که به نام چهاربازار معروف است، بسنده کردهاند.
محوطه چهاربازار باچون
این باستانشناس با اشاره به بررسیهای اولیه که توسط او و همکاران اداره کل میراث فرهنگی فارس انجام شده است، گفت: عکسهای هوایی نشان میدهد که محوطه چهاربازار به شکل مستطیلی و ۱۴.۴ کیلومتر مربع (۱۴۴۰ هکتار) وسعت دارد. طول آن ۴ کیلومتر در راستای شمالی -جنوبی، و عرض آن ۳.۶ کیلومتر در راستای شرقی-غربی است. محل اجرای این محوطه دارای یک شیب ملایم به سمت جنوب غربی و غرب است که آب را به سراسر بخشهای آن میرساند. در دورتادور این محوطه، حصار کشی شده و چهار ورودی در چهار جهت جغرافیایی دارد. بخش اندرونی محوطه، چهار خیابان به شکل صلیب اجرا شده است که چهار خیابان اصلی همدیگر را در بخش یک سوم جنوبی محوطه قطع میکنند. علاوه بر خیابانهای اصلی، دو خیابان فرعی دیگر، در حدفاصل بین مستطیلهای شمالی با پهنای بسیار کمتر وجود دارد که شواهد آن در عکسهای هوایی به صورت یک خط طولی شرقی-غربی مشخص است. این خیابانهای اصلی و فرعی، فضای داخلی را به شش قسمت تقسیم کرده اما این شش قسمت به طور دقیق مساوی نیستند.

موقعیت محوطه چهاربازار در دشت بنی قطار، در جنوب غرب و غرب روستای باچون. درشمال شرق و شرق شهر فراشبند، در این تصویر برای مقایسه این محوطه با شهرباستانی فیروزآباد و شهر جدید فراشبند، همه محوطه ها با توجه اندازه واقعی خودشان بر روی نقشه نشان داده شده اند که در محیط جی ای اس و توسط پارسا قاسمی ترسیم شده اند
قاسمی ادامه داد: در تقاطع چهار مستطیل جنوبی، ساختار مرکزی محوطه به شکل یک باروی مربع شکل به ابعاد ۵۵۰ در ۵۵۰ متر است. این بارو، دارای چهار ورودی هم عرض ورودی خیابانهای اصلی که در سطح بیرونی دیوار آن برجهای نیمه مدور و مدور شکل ساخته شده است. ضخامت دیوارهای بیرونی این باروی مدور مرکزی ۲ متر و از مصالح سنگ و گچ ساخته شده است. در یک طرف ورودیهای دیواره بیرونی این باروی مربع شکل، بقایای یک اتاق مستطیل شکل دیده میشود که احتمالا جلوخان یا اتاق نگهبانی بوده و به نظر میرسد در اطراف ورودیهای دیگر نیز، به شکل قرینه وجود داشته است. در بخش حیاط مرکزی، بنایی چهارگوش کوشک، با پلان چلیپایی به ابعاد تقریبی ۱۳۲ در ۱۳۲ متر ساخته شده است که بازوهای آن به صورت قرینه در راستای چهار خیابان اصلی است و هر کدام از آنها ۵۰ متر طول و ۳۰ متر دارد. چهار فضای مربع شکل، هر یک به ابعاد ۵۰ در ۵۰ متر در اطراف این چلیپا ساخته شده است. این کوشک، از نظر هندسی و پلان طوری طراحی شده که از درون آن میتوان انتهای خیابانها و دروازههای ورودی محوطه را مشاهد کرد. به نظر میرسد این کوشک ساخته شده در مرکز میدان اصلی و اطراف چهارباغ، قدیمیترین نمونهای است که در ایران کشف میشود. ضمن آنکه در داخل برج و باروی مرکزی، بقایای منظم معماری در اطراف خیابانهای اصلی، بقایای کرتههای منظم هندسی با استخرها و بقایای کانالهایی دیده میشود.

تصویر خیابان شمالی محوطه، این خیابان حدود 50 متر پهنا دارد و در دو طرف شرق و غرب آن حصارهایی با عرض 1 متر از مصالح سنگ و گچ ساخته شده است.

بقایای دیوار اطراف خیابان اصلی شمالی، که با استفاده از مصالح سنگ و گچ ساخته شده است
این باستانشناس تصریح کرد: به جز فضای داخل محوطه، بقایای کرتهبندیهای منظم، در فضای شرق خارج از دیواره اصلی ساخته شده که به نظر میرسد یک باغ دیگر در خارج از باغ فعلی وجود داشته که برای استفاده عمومی بوده است. لازم به ذکر است که به فاصله ۷۰ متری غرب مستطیلی باروی مرکزی، بعدا یک کاروانسرا مربوط به دورههای میانه اسلامی با پلان مربع روی ویرانه یک بنای دوره ساسانی ساخته شده است. همچنین بنای دیگری در ۱کیلومتری جنوب شرق خارج از محوطه در کنار جاده امروزی ساخته شده که احتمالا کاروانسرا بوده است.

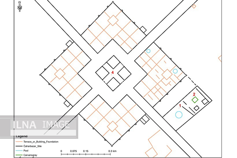
پلان باروی چهارگوش مرکزی و بقایای منظم خیابان اصلی که در اینجا میدان اصلی شهر را تشکیل می دهند در اطراف میدان و کوشک بقایای کرته بندی و چهارباغ ها اجرا شده است. در مرکز بنای کوشک قرار دارد که با شماره4 مشخص شده است
او با اشاره به آنکه دشت باچون به علت داشتن دو دلتای مهم دارای یکی از غنیترین سفرههای آب زیر زمینی است، خاطرنشان کرد: به نظر میرسد چشمه برم-فرهاد باچون مهمترین منبع تامین آب دایمی این محوطه بوده است. بقایای کانالهای زیادی در سطح محوطه دیده میشود که آب را از ضلع شمالی دشت به محوطه منتقل میکرد. علاوه بر این، تعداد زیادی استخر مدور با میانگین قطر ۲۰ متر در سرتاسر محوطه ساخته شده است.
به گفته قاسمی، پراکندگی سفالهای ساسانی در سطح و بقایای معماری به جای مانده نشان میدهد که این محوطه احتمالا مربوط به دوره ساسانی و باتوجه به پلان مستطیلی آن، احتمالا در دوره شاپور اول به بعد ساخته شده است. طبق گزارش طبری، مهرنرسه، وزیر بزرگ (قرن ۴ و ۵ میلادی) در زاده گاه خود در در ولایت اردشیر خوره، و جره، سه باغ بزرگ (دوازده هزار نخل، دوازده هزار زیتون و دوازده هزار سرو) بنیان نهاد که تا سدههای بعد از او پابرجا بودهاند.
این باستانشناس ادامه داد: این گزارش طبری نشان میدهد که ساسانیان که بنیانگذاران پروژههای بزرگ شهری، مهندسی کشاورزی و آبیاری در مقیاس بزرگ بودند در این منطقه از فارس، شهرها و باغهای هندسی بزرگ پی افکندند که محوطه چهاربازار باچون یکی از آنهاست. با توجه به نزدیکی این مکان به شهر گور یا فیروزآباد، بدون شک این مکان یک مرکز مهم در این بخش استان اردشیر خوره ساسانی بوده است.
او با اشاره به آنکه براساس نتایج اولیه بررسیهای باستانشناسی، میتوان دو فرضیه درباره کاربری این محوطه در نظر گرفت، درخصوص فرضیه نخست گفت: فرضیه اول و به نظر منطقی این است که این محوطه یک شهر بزرگ ساسانی است که براساس یک پلان رومی آمیخته با عناصر معماری ایرانی ساخته شده که احتمالا به دلایلی ناتمام مانده یا ساخت و ساز در آن ادامه نیافته است، در داخل این شهر همانند دیگر شهرهای ساسانی پردیس یا باغهای ایرانی بوده که مهترین آن الگوی چهارباغ ایرانی است که در اطراف کوشک و داخل باروی مرکزی اجرا شده است. این محوطه شهری با اجرای یک طرح هندسی منظم، با عناصر ایرانی چهارباغ و کوشک، قطعا دارای اب نماها و استخرهای مختلف و شبکه ابرسانی، و کانال کشیهای منظمی بوده است که در دورههای اسلامی، از این عناصر در ساخت باغهای ایرانی از آن استفاده شده است.
قاسمی ادامه داد: فرضیه دوم این است که احتمالا این محوطه از همان ابتدا برای یک باغ شاهی بزرگ مقیاس طراحی شده بود. زیرا سازندگان این مجموعه وسیع، به جای قرار دادن بناهای مذهبی و اداری در داخل دیوار مرکزی، به ایجاد یک کوشک در وسط مبادرت کردند. در اطراف میدان و کوشک در داخل فضاهای ال- شکل چهار باغ ایرانی را اجرا کردهاند. این بنای کوشک در واقع با این که بزرگ است اما قصری است که در میدان اصلی محوطه قرار داشت و از طریق دالانهای آن امتداد همه خیابانها مشاهده میشد. با توجه به آوارهای به جای مانده به نظر نمیرسد که راهروها یا ایوانهای آن، سقف یا طاقی مانند طاق کسری- بزرگترین نمونه طاق و ایوان سازی این دوره است - داشته باشد و همین طور اینکه یک کم سخت است که در نظر بگیریم گنبد بزرگی در محل تقاطع دالانها یا ایوانها بر روی آن ساخته شده باشد زیرا آوار به جای مانده از این فضای مرکزی زیاد نیست. راهروها یا دالانهای آن هم از زمین و هم از طریق عکسهای هوایی طبقهبندی نشده کرونا که در سال ۱۹۷۰ میلادی گرفته شده مشخص است. اکنون با کشف یک محوطه شهری بزرگ از دوره ساسانی با طرح چهارباغ ایرانی در قلب فارس، میتوان به اطلاعات مهمی درباره شیوه شهرسازی و مدل چهارباغ ایرانی دست یافت این درحالی است که شواهد میدانی باستانشناسی در این باره محدود بوده است.

بقایای کوشک در مرکز محوطه که در محل تقاطع خیابان های اصلی و با استفاده از مصالح سنگ و گچ ساخته شده است
او یادآورشد: بدون شک این مجموعه شهری در برگیرنده باغها با درختان زیبا و آراسته بوده است اما گلستان باغ به نظر میرسد که در داخل حیاط باروی مرکزی بوده است. اجرای این طرح بزرگ در این بخش که هم دارای دشت کوچک و هم کوه را داشته منظرهای دلپذیر بوده است و بخشهای دیگری از خلاقیت و مهندسان ساسانی در پروژههای با مقیاس بزرگ را روشن میکند. اهمیت این محوطه در این است که یکی از بهترین محوطههای شهری ساسانی، با چهارباغ ایرانی مربوط به این دوره است که تاکنون از طریق یافتههای باستانشناسی کشف میشود. این طرح بزرگ شهری با خیابانهای پهن، و ساخت و سازهای اطراف آن، در زمان خود یکی از پروژههای عظیم شاهی بوده که برای اجرای ان هزینه زیادی مالی صرف شده و نیروی مهندسی و انسانی زیادی داشته است.
به گفته این باستانشناس، متاسفانه به علت تامین آب زمینهای کشاورزی جدید، در بخش غربی شهر، یک سد کوچک ایجاد شده که به محوطه آسیب زده است. همچنین به علت عملیات کشاورزی بخشهای زیادی از این محوطه آسیب دیده است. بخش مرکزی محوطه به علت احداث جاده خالی و بخش شرقی آن به علت ایجاد جاده آسفالت آسیب فراوان دیده است. ضرورت دارد که هر چه زودتر میراث فرهنگی کشور اقدامات لازم برای حفاظت از این محوطه ارزشمند را انجام دهد.

موقعیت و پلان منظم محوطه چهاربازار در دشت بنی قطار، در جنوب غرب و غرب روستای باچون. در این تصویر موقعیت بخش ها و خیابان ها و دیگر ساختارهای مهم مشخص شده است
بنابراین گزارش، نتایج مطالعات مقدماتی این محوطه مهم در مجله Historia i swiat, Siedlce توسط پارسا قاسمی، رضا نوروزی، عزیز رضایی، مصیب امیری و ابراهیم قزلباش منتشر شده و از لینک زیر قابل دانلود است. https://czasopisma.uph.edu.pl/index.php/historiaswiat/article/view/1690